Zhrňovacie
Kvalita, dizajn a inovácia. Plastové okenné systémy SCHÜCO Vám ponúkajú presne tie vlastnosti, ktoré od okien budete požadovať a očakávať. Z rozmanitých okenných systémov si vždy vyberte ten, ktorý je svojimi vlastnosťami ideálny na Vašu stavbu, respektíve do Vašej rekonštrukcie. Základné požiadavky sa dajú splniť 60 mm stavebnou hĺbkou okenného rámu, pričom pre vyššie nároky je určená 70 mm stavebná hĺbka, ktorú máme v ponuke. Stavebná hĺbka okenných systémov 82 mm vytvára systémový segment Premium. Okná v tomto segmente sú určené najmä pre nízkoenergetický spôsob výstavby.
Charakteristické znaky plastových okien SCHÜCO:
- Vysoká kvalita
- Bezpečnosť
- Slnečné tienenie
- Vysoká izolačná schopnosť
- Ochrana proti vlámaniu
- Dizajnová pestrosť
Mnohostranne použiteľný zhrňovací systém presklených krídiel s možnosťou otvárania dovnútra i dovonka. Prah môže byť alternatívne plochý, nízky a teda bezbariérový, alebo vyšší, vo forme rámového profilu. Konštrukcia je vhodná pre nasadenie do individuálnej výstavby, ako i do firemných, či polyfunkčných objektov, ako sú reštaurácie, autosalóny, nákupné centrá a mestské pasáže.
Vlastnosti
- Možnosť maximálneho prepojenia interiéru s exteriérom odsunutím všetkých krídiel.
- Otváranie krídiel dovnútra, resp. dovonku.Nehlučný a ľahký chod krídiel.
- Úzke pohľadové plochy profilov a veľký podiel presklenej plochy.
- Trieda odolnosti voči násilnému vniknutiu až do stupňa 2 (WK2).
- Vodotesnosť podľa EN 12208 (trieda 9A). Hrúbka zasklenia od 4 do 45 mm (dvojsklá i trojsklá).
- Alternatívne nízky, bezbariérový, alebo vysoký profilový prah.
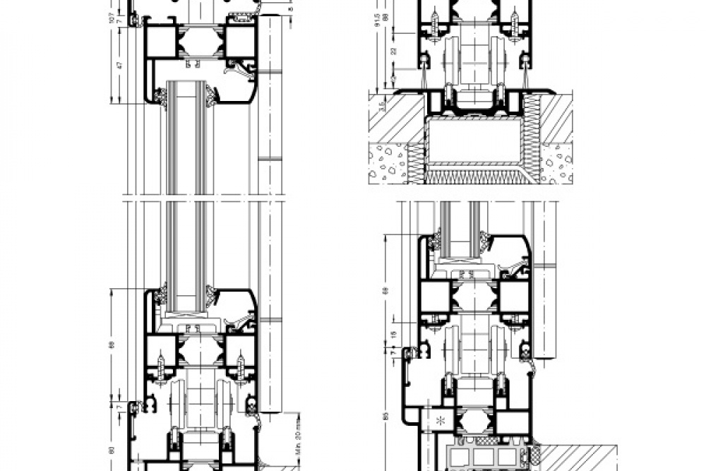
- Stavebná hľbka rámu je 70 mm, krídiel 70 mm. Pri spájaní s inými oken.systémami je možné použiť adaptérové profily.
- Rovnaké veľkosti skiel v krídlach a z toho plynúci príťažlivý design.
- Možnosť vybavenia dverí magnetickými spínačmi pre účely plášťovej ochrany a zníženia nákladov na vykurovanie.
- Kompatabilnosť s ostatnými Schüco systémami.
Farby
Hliníkové profily môžu byť upravené podľa RAL-vzorkovníka farieb,resp.eloxované v 6 odtieňoch. Tesnenia sú čierne.





