Zdvižno-posuvné
Kvalita, dizajn a inovácia. Plastové okenné systémy SCHÜCO Vám ponúkajú presne tie vlastnosti, ktoré od okien budete požadovať a očakávať. Z rozmanitých okenných systémov si vždy vyberte ten, ktorý je svojimi vlastnosťami ideálny na Vašu stavbu, respektíve do Vašej rekonštrukcie. Základné požiadavky sa dajú splniť 60 mm stavebnou hĺbkou okenného rámu, pričom pre vyššie nároky je určená 70 mm stavebná hĺbka, ktorú máme v ponuke. Stavebná hĺbka okenných systémov 82 mm vytvára systémový segment Premium. Okná v tomto segmente sú určené najmä pre nízkoenergetický spôsob výstavby.
Charakteristické znaky plastových okien SCHÜCO:
- Vysoká kvalita
- Bezpečnosť
- Slnečné tienenie
- Vysoká izolačná schopnosť
- Ochrana proti vlámaniu
- Dizajnová pestrosť
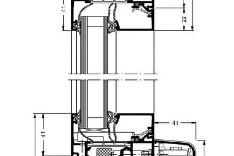
Veľkorysý, zdvižno-posuvný lineárny systém, ktorý v maximálnej miere spĺňa všetky požiadavky naňho kladené. Medzi architektmi sa teší veľkej obľube kvôli možnosti posúvať krídla až do váhy 300 kg, čo zodpovedá pri zasklení dvojsklom rozmeru krídla až 3000 x 2800 mm! Stavebná hĺbka krídiel umožňuje zasklenie o hrúbke 24 – 52 mm, takže aj trojsklá s Ug = 0,6 W/m2K. Estetická kľuka s veľkou pákou spolu so zdvižno-posuvným kovaním sa starajú o vysoký komfort ovládania krídiel. Vhodné na použitie pre modernú, hi-tec architektúru, s preskleniami na celú výšku podlažia.
Vlastnosti
- Maximálna váha krídla až 300 kg, čo premietnuté do rozmeru krídla je až 3000 x 2800 mm (u dvojskla).
- Nízky, tepelne izolovaný prah s nerezovými koľajnicami pre pojazd krídiel.
- Vysoký komfort ovládania krídiel, napriek ich veľkej váhe. Nehlučný a ľahký chod krídiel.
- Stavebná hľbka rámu je 160 mm, krídiel 70 mm. Pri spájaní s inými oken.systémami je možné použiť adaptérové profily.
- Úzke pohľadové plochy profiloch a veľký podiel presklenej plochy.
- Trieda odolnosti voči násilnému vniknutiu až do stupňa 2 (WK2).
- Súčiniteľ prestupu tepla Uw = 1,5 až 1,1 W / m2K, v závislosti od druhu zasklenia a veľkosti konštrukcie.
- Rovnaké veľkosti skiel v pohyblivých i nepohyblivých krídlach a z toho plynúci príťažlivý design.
- Prievzdušnosť podľa EN 12207 (trieda 4.)
- Vodotesnosť podľa EN 12208 (trieda E 750.)
- Hrúbka zasklenia od 24 do 52 mm (dvojsklá i trojsklá).
- Možnosť vybavenia dverí magnetickými spínačmi pre účely plášťovej ochrany a zníženia nákladov na vykurovanie.
- Kompatabilnosť s ostatnými Schüco systémami.
Farby
Hliníkové profily môžu byť upravené podľa RAL-vzorkovníka farieb,resp.eloxované v 6 odtieňoch. Tesnenia sú čierne.







