Zdvižno-posuvné
Veľkorysý, zdvižno-posuvný lineárny systém, ktorý v maximálnej miere spĺňa všetky požiadavky naňho kladené. Medzi architektmi sa teší veľkej obľube kvôli možnosti posúvať krídla až do váhy 300 kg, čo zodpovedá pri zasklení dvojsklom rozmeru krídla až 3000 x 2800 mm! Stavebná hĺbka krídiel umožňuje zasklenie o hrúbke 24 – 52 mm, takže aj trojsklá s Ug = 0,6 W/m2K. Estetická kľuka s veľkou pákou spolu so zdvižno-posuvným kovaním sa starajú o vysoký komfort ovládania krídiel. Vhodné na použitie pre modernú, hi-tec architektúru, s preskleniami na celú výšku podlažia.
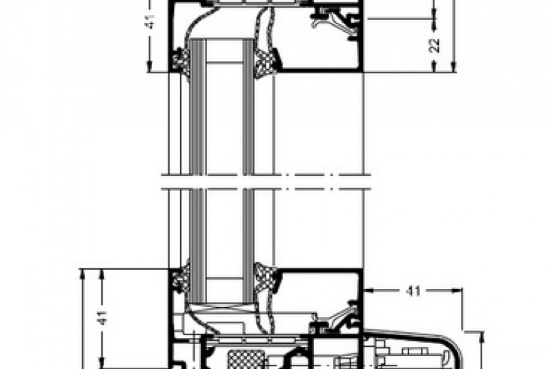
Vlastnosti
- Maximálna váha krídla až 300 kg, čo premietnuté do rozmeru krídla je až 3000 x 2800 mm (u dvojskla).
- Nízky, tepelne izolovaný prah s nerezovými koľajnicami pre pojazd krídiel.
- Vysoký komfort ovládania krídiel, napriek ich veľkej váhe. Nehlučný a ľahký chod krídiel.
- Stavebná hľbka rámu je 160 mm, krídiel 70 mm. Pri spájaní s inými oken.systémami je možné použiť adaptérové profily.
- Úzke pohľadové plochy profiloch a veľký podiel presklenej plochy.
- Trieda odolnosti voči násilnému vniknutiu až do stupňa 2 (WK2).
- Súčiniteľ prestupu tepla Uw = 1,5 až 1,1 W / m2K, v závislosti od druhu zasklenia a veľkosti konštrukcie.
- Rovnaké veľkosti skiel v pohyblivých i nepohyblivých krídlach a z toho plynúci príťažlivý design.
- Prievzdušnosť podľa EN 12207 (trieda 4.)
- Vodotesnosť podľa EN 12208 (trieda E 750.)
- Hrúbka zasklenia od 24 do 52 mm (dvojsklá i trojsklá).
- Možnosť vybavenia dverí magnetickými spínačmi pre účely plášťovej ochrany a zníženia nákladov na vykurovanie.
- Kompatabilnosť s ostatnými Schüco systémami.
Farby
Hliníkové profily môžu byť upravené podľa RAL-vzorkovníka farieb,resp.eloxované v 6 odtieňoch. Tesnenia sú čierne.







