Sklopno-posuvné
Paralelne posuvné a sklopné balkónové dvere (PASK) spájajú výhody funkcie posúvania a sklápania: Krídlo sa dá sklopiť do vetracej polohy, a následne posunúť za bočné pevné zasklenie. Oproti zdvižno-posuvným dverám majú tú výhodu, že sa krídlo dá sklopiť, táto konštrukcia je zároveň tesnejšia a odolnejšia voči hnanému dažďu. Nevýhodou sa môže javiť 79 mm vysoký spodný profil, ktorý treba prekračovať, menšie maximálne rozmery posuvného krídla a nerovnaké rozmery zasklenia krídla a susediaceho bočného svetlíka. Pri oddelení bazénových častí od exteriéru odporúčame použiť dvere PASK.
Vlastnosti
- Vyrobiteľné zo štandardných okenných systémov AWS 65 / 70.HI / 75.SI.
- Funkcia sklopenia pre vetranie, funkcia posuvu pre maximálne možný svetlý otvor.
- Vysoký komfort ovládania, kovanie 180 / 200 kg s riadeným ovládaním, t.z. páka na veľkej kľuke uľahčuje manipuláciu aj s ťažkými krídlami.
- Krídlo v sklopenej polohe je zabezpečené voči odsunutiu.
- Na kľuke je poistka proti pribuchnutiu zvonku.
- Trieda odolnosti voči násilnému vniknutiu až do stupňa 2 (WK2).
- Prievzdušnosť podľa EN 12207 (trieda 4.)
- Vodotesnosť podľa EN 12208 (trieda 9A.)
- Hrúbka zasklenia od 4 do 65 mm (dvojsklá i trojsklá).
- Váha krídla až do 200 kg.
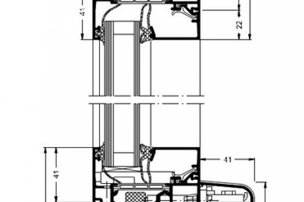
- Max.svetlá priechodná šírka x výška = 1840 x 2440 mm u 1-krídl. dverí.
- Prah tvorený profilom vysokým 79 mm.
- Možnosť vybavenia dverí magnetickými spínačmi pre účely plášťovej ochrany a zníženia nákladov na vykurovanie.
- Kompatabilnosť s ostatnými Schüco systémami.
Farby
Hliníkové profily môžu byť upravené podľa RAL-vzorkovníka farieb,resp.eloxované v 6 odtieňoch. Tesnenia sú čierne.







